Woonoppervlakte
Circa 127 m²
Perceeloppervlakte
Circa 555 m²
Bouwjaar
Gebouwd in 1971
Aantal kamers
5 kamers (4 slaapkamers)

Graafseweg 668

6603 CN, Wijchen (Gelderland)

Op een mooie locatie in Alverna, aan de parallelweg van de Graafseweg vind je deze vrijstaande woning met 4 slaapkamers, een vrijstaande garage/carport, veranda, diverse bergingen/schuurtjes en een eigen oprit om op eigen terrein met meerdere auto’s te kunnen parkeren. De royale tuin is 19 meter diep, waarvan de achtertuin op het zuidoosten ligt en is voorzien van diverse terrassen, veranda en een vijver. Kortom: een heerlijke plek om rustig te kunnen genieten.

Let op: De eigenaar is bereid om de bestaande vijver te verwijderen.

Bijzonderheden:
Royale schuur, multifunctioneel te gebruiken als hobbyruimte of praktijk aan huis
Energiezuinig met zonnepanelen
Royale woonkamer en eetkamer
Nieuwe keuken, toilet en vloeren op de begane grond
Praktische kelder en bijkeuken
Cv-ketel Nefit 2020
Voorzien van rolluiken
Begane grond voorzien van kunststof kozijnen
Garage met carport

Algemeen:
Bouwjaar: 1971
Woonoppervlakte: 127 m², 27 m² overige inpandige ruimte
Inhoud: 569 m³
Perceel: 555 m²

Indeling:
Begane grond
Aan de voorzijde van de woning bevindt zich een ruime hal waar zich ook de garderobe en de trapopgang met fraaie spiltrap naar de eerste en tweede verdieping bevindt. Zowel de hal als het het woongedeelte hebben een pvc vloerafwerking met vloerverwarming. Vervolgens komen we in de lichte, woonkamer met het zitgedeelte aan de voorzijde en een aparte eetkamer aan de achterzijde. Een mooie ruimte voor een grote eettafel waar je lekker lang kunt tafelen.
De keuken is in open verbinding met de woonkamer en is in 2021 vernieuwd en voorzien van antracietkleurige inrichting met onder- en bovenkasten, een donker aanrechtblad en diverse inbouwapparatuur (inductiekookplaat, vaatwasser, koelkast, oven en afzuigschouw). Tevens een gezellig barretje met 2 krukken en opbergruimte.
Via de keuken kom je in de kelderruimte en in de praktische bijkeuken met de toiletruimte (vernieuwd in 2021), de witgoed aansluitingen, bergkast en een afgesloten ruimte met opstelplaats van de cv ketel. De toegang naar de tuin bevindt zich ook hier.

De garage/berging heeft openslaande deuren aan de voorzijde die toegang geven tot carport en de oprit en is voorzien van elektra en verwarming. Tevens is hier een ruime vliering aanwezig.

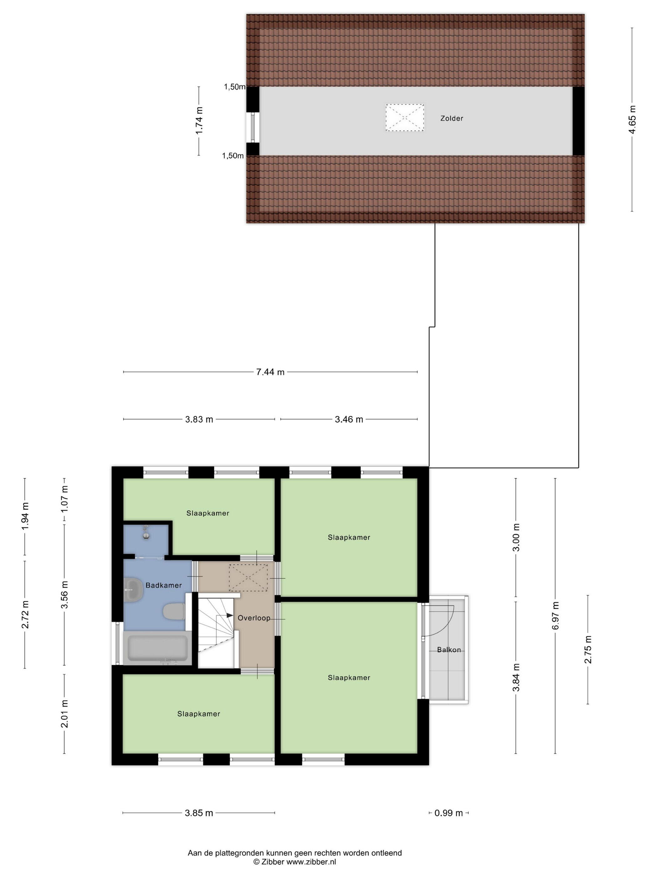
Eerste verdieping
We bereiken de overloop met trapopgang naar de tweede verdieping en toegang tot de 4 slaapkamers en badkamer. 1 slaapkamer bevindt zich aan de zijkant en geeft toegang tot het balkon. De slaapkamers zijn voorzien van vloerbedekking en rolluiken. De badkamer is volledig betegeld en heeft een ligbad, douchecabine, vaste wastafel in meubel, designradiator en natuurlijke lichtinval via de raampartij.

Tweede verdieping
Een mooie open ruimte, waar je nog prima een slaapkamer kunt maken en met veel mogelijkheden. De zolderverdieping heeft een dakkapel en dakraam, is van binnenuit geïsoleerd en is te bereiken vanaf de overloop van de 1ste verdieping via een vlizotrap.

Tuin:
De achtertuin is gelegen op het zuidoosten en voorzien van meerdere terrassen. Direct achter de woning bevindt zich een fijne veranda, en een achterom Tevens nog een garage met carport, meerdere bergingen/schuurtjes en een royale tuin met vijver. De achtertuin is een heerlijke plek om rustig te kunnen genieten!

Energiezuinig met zonnepanelen

Plattegronden

Overdracht

Vraagprijs
€ 600.000 k.k.
Status
Verkocht
Aanvaarding
In overleg

Bouw

Object type
Eengezinswoning, vrijstaande woning
Soort bouw
Bestaande bouw
Bouwjaar
1971
Soort dak
Zadeldak

Oppervlakte en inhoud

Woonoppervlakte
127 m²
Perceeloppervlakte
555 m²
Inhoud
569 m³
Overige inpandige ruimte
27 m²
Gebouwgeb. buitenruimte
60 m²

Indeling

Aantal kamers
5 kamers (4 slaapkamers)
Aantal badkamers
1 badkamer
Badkamervoorzieningen
Ligbad, toilet, douche, wastafel, wastafelmeubel
Aantal woonlagen
3 woonlagen
Voorzieningen
Rolluiken, zonnepanelen

Energie

Energielabel
D
Energielabel registratie
25-03-2025
Isolatie
Dakisolatie, voorzetramen, grotendeels dubbelglas
Verwarming
Cv-ketel
Warm water
Cv-ketel
Cv ketel
Nefit combiketel gas gestookt uit 2020 (eigendom)

Buitenruimte

Ligging
In woonwijk
Balkon / dakterras
Balkon
Tuin
Achtertuin, voortuin
Afmetingen achtertuin
295 m² (19 meter diep en 15.5 meter breed)
ligging tuin
Gelegen op het oosten en bereikbaar via achterom

Bergruimte

Schuur / berging
Vrijstaande houten berging

Garage

Soort garage
Parkeerplaats
Capaciteit
1 auto
Voorzieningen
Elektra, vliering

Parkeergelegenheid

Soort parkeergelegenheid
Op eigen terrein

Indicatie hypotheeklasten

Eigen inleg:
Spaargeld / overwaarde

Rente:
Laagste 10-jaars rente

Laagste 10-jaars rente

2,85% - Centraal Beheer Groen... - NHG


3,08% - Centraal Beheer Groen... - 80%

Laagste 20-jaars rente

3,29% - Centraal Beheer Groen... - NHG


3,52% - Centraal Beheer Groen... - 80%

Laagste 30-jaars rente

3,41% - Centraal Beheer Groen... - NHG


3,74% - Centraal Beheer Groen... - 80%


Hypotheek:

Bruto maandlasten: € 0 p/m

Netto maandlasten: € 0 p/m

Hoe berekenen we dit?

Het rentepercentage is gebaseerd op de laagste 10 jaars vaste rente voor één hypotheekdeel. De vermelde rente (3.08% zonder NHG) is gecontroleerd op 03-02-2026. Deze berekening is gebaseerd op een annuïteitenhypotheek die volledig wordt afgelost, waarbij de maandlasten gedurende de gehele looptijd gelijk blijven. De werkelijke rente en netto maandlasten kunnen variëren, afhankelijk van uw persoonlijke situatie en de hypotheekverstrekker. Raadpleeg een financieel adviseur voor een nauwkeurige berekening en advies. Aan deze berekening kunnen geen rechten worden ontleend; het dient enkel als indicatie.

Documentatie

Kadastrale kaart

Leefomgeving

Plattegronden PDF

BAG uittreksel

WOZ waarderapport

Bezoek onze website

Inloggen move.nl

Zonnegrenzen bekijken

Op de kaart

Inwoners in Wijchen

Cijfers voor postcodegebied 6603

Totaal aantal inwoners
36260 inwoners
Mannen
49%
Vrouwen
51%

Inwoners in Wijchen

Cijfers voor postcodegebied 6603

tot 15 jaar
12%
15 tot 25 jaar
13%
25 tot 35 jaar
19%
45 tot 65 jaar
34%
65 en ouder
21.7%

Huishoudens in Wijchen

Cijfers voor postcodegebied 6603

Eenpersoons zonder kinderen
27%
Meerpersoons zonder kinderen
32%
Huishoudens zonder kinderen
59%

Huishoudens in Wijchen

Cijfers voor postcodegebied 6603

Huishoudens met één kind
20%
Huishoudens met meerdere kinderen
21%
Huishoudens met kinderen
41%

Woningen in Wijchen

Cijfers voor postcodegebied 6603

Woningen voor 1945
12%
Woningen tussen 1945 en 1965
11%
Woningen tussen 1965 en 1975
13%
Woningen tussen 1975 en 1985
17%
Woningen tussen 1985 en 1995
6%

Woningen in Wijchen

Cijfers voor postcodegebied 6603

Woningen tussen 1995 en 2005
6%
Woningen tussen 2005 en 2015
27%
Woningen na 2015
9%
Huurwoningen
40%
Koopwoningen
60%

Overige in Wijchen

Cijfers voor postcodegebied 6603

Gemiddelde WOZ waarde
€ 309.000,-
Personen onder de 65 met uitkering
Niet beschikbaar

Overige in Wijchen

Cijfers voor postcodegebied 6603

Adressen per km²
509
Stedelijkheid (schaal 1 op 5)
40%
Postcode kaart 6603 Gemeente kaart wijchen

Korte feiten over Wijchen

Wijchen is de hoofdplaats van de gemeente Wijchen in de Nederlandse provincie Gelderland. De plaats is met 36.625 inwoners (op 1 januari 2021) de grootste in de gelijknamige gemeente van bijna 41.000 inwoners. Wijchen ligt aan de zuidgrens van Gelderland, tegen Noord-Brabant aan.

Indien u vragen heeft of u wilt een bezichtiging inplannen, dan kunt u gebruik maken van het formulier hiernaast. Er zal daarna op korte termijn contact met u worden opgenomen.

Al 40 jaar uw huismakelaar

Ondernemende makelaar met ambitie

U wilt een huis kopen, verkopen of laten taxeren. Het liefst schakelt u een betrouwbare makelaar in bij u in de buurt. Maar hoe vindt u precies de makelaar die het best bij u past? Het aanbod is al zo groot.

Driessen Makelaardij maakt uw keuze een stuk gemakkelijker. Hoe? Allereerst zijn we al veertig jaar een begrip in de regio. Met een kantoor in Wijchen en in Nijmegen kennen wij de lokale huizenmarkt op ons duimpje. En niet onbelangrijk: de huizenmarkt kent ons. ‘Want vaak is de eerste stap van een woningzoeker de stap naar ons kantoor.’ Hierdoor weten wij vraag en aanbod snel bij elkaar te brengen en perfect in te spelen op de wensen van klanten en potentiële klanten. Bovendien zijn we aangesloten bij de NVM, de grootste brancheorganisatie in de makelaardij. Onze mensen zijn dus uitstekend in staat het hele aan- en verkooptraject van begin tot eind professioneel te begeleiden.

Uw ambitie is onze ambitie. Dat wil zeggen: u verwacht van ons dat we tot het uiterste gaan u die kwaliteit te bieden waarom we al zo lang bekend staan. Daar mag u ons aan houden!

Al 40 jaar uw huismakelaar
Reviews Driessen Makelaardij

Graafseweg 668, Wijchen

€ 600.000 k.k. - Verkocht

Helaas, deze woning is verkocht!

Net te laat, deze woning is al verkocht. Laat een zoekopdracht bij ons achter zodat wij u direct kunnen helpen wanneer er nieuw aanbod beschikbaar komt.